REQUEST A TOUR If you would like to see this home without being there in person, select the "Virtual Tour" option and your agent will contact you to discuss available opportunities.
In-PersonVirtual Tour

$ 859,000
Est. payment /mo
Price Dropped by $3.6M
554 MARKET ST St. Augustine, FL 32095
3,916 SqFt
UPDATED:
Key Details
Property Type Commercial
Sub Type Office
Listing Status Active
Purchase Type For Sale
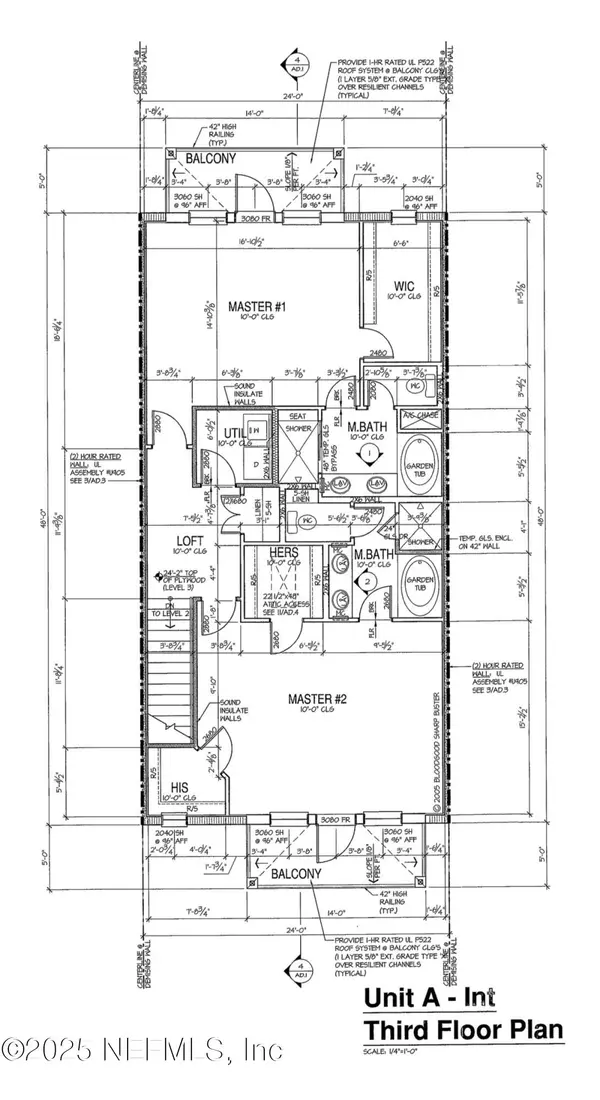
Square Footage 3,916 sqft
Price per Sqft $219
MLS Listing ID 2106657
Year Built 2007
Annual Tax Amount $11,218
Lot Size 1.000 Acres
Acres 1.0
Property Sub-Type Office
Source realMLS (Northeast Florida Multiple Listing Service)
Property Description
Palencia in St. Johns County in St. Augustine is an upscale community that attracts great tenants.
Currently a 7 Cap. If managed well, at current pace then one should be
able to project 3-4% yearly increase in revenue and long-term leases are positioned as such. Short-term rental option for one of three units.
Three addresses:
550 MARKET ST - 1070sqft Office
554 MARKET ST - 2350sqft Townhome
359 MIDWAY ST - 550sqft Apartment
Currently a 7 Cap. If managed well, at current pace then one should be
able to project 3-4% yearly increase in revenue and long-term leases are positioned as such. Short-term rental option for one of three units.
Three addresses:
550 MARKET ST - 1070sqft Office
554 MARKET ST - 2350sqft Townhome
359 MIDWAY ST - 550sqft Apartment
Location
State FL
County St. Johns
Area 312-Palencia Area
Direction Interstate 95 to International Golf Parkway East to US 1 to Palencia Drive to Market Street
Exterior
Parking Features Garage
Private Pool No
Building
Lot Description On Golf Course
Story 3
Level or Stories 3
Others
Tax ID 0720950190
Listed by EXIT MAGNOLIA POINT REALTY • DOUGLAS SENECAL






